Updates
Updates
東大阪市新庄倉庫・事務所
賃貸
- 物件所在地
- 大阪府東大阪市新庄3-1-22
- 保証金・解約引
-
ー
/
ー
- 敷金・礼金
-
3ヵ月
/
1ヵ月
- 賃料
-
385,000円 /
坪単価:3,124円
- 建物構造
-
鉄骨造 3階
- 交通・アクセス
-
鴻池新田駅(JR片町線) 徒歩15分
More info
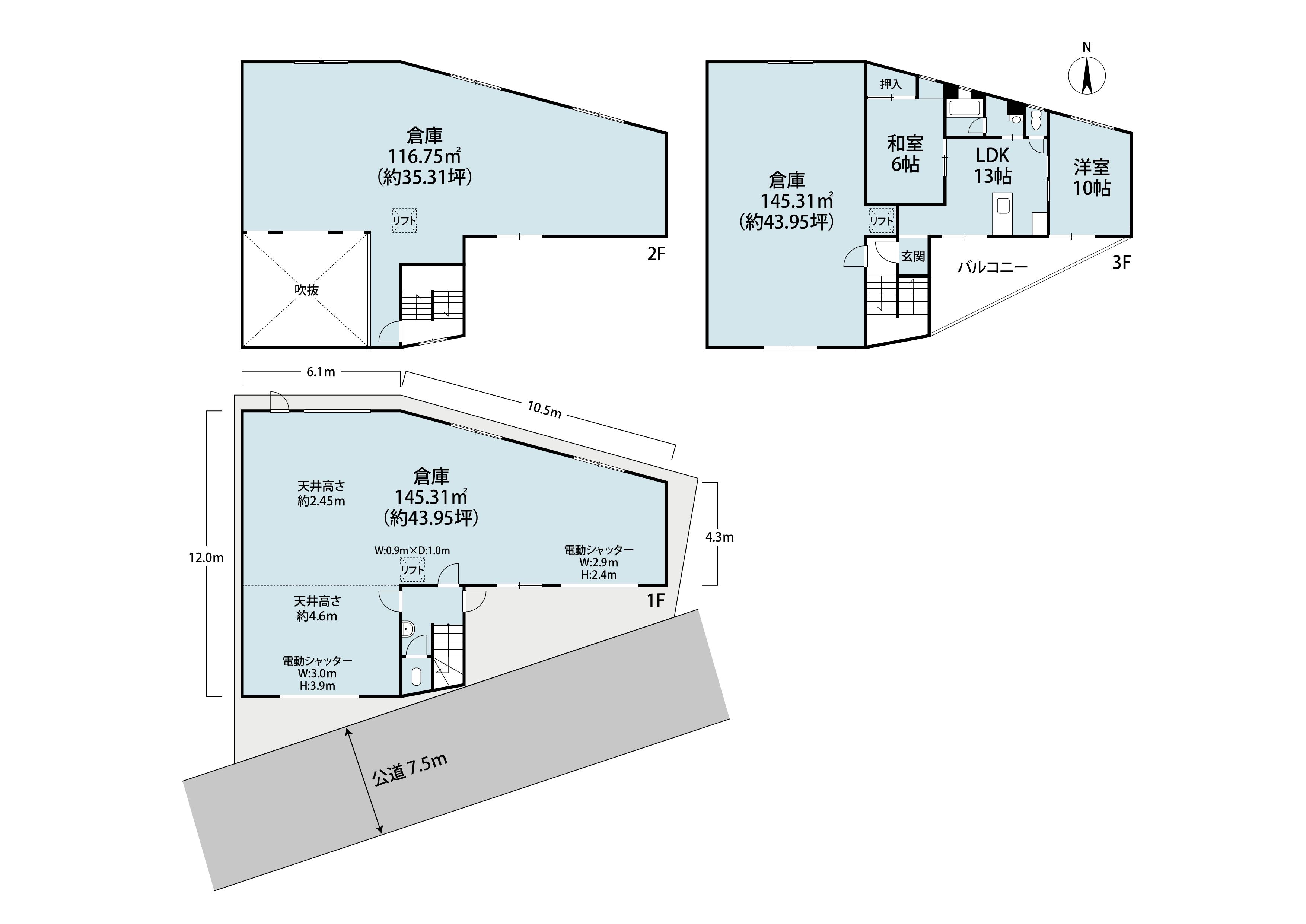
- 建物面積
-
| 1階 |
145.31㎡ |
(43.96坪) |
| 2階 |
116.75㎡ |
(35.32坪) |
| 3階 |
145.31㎡ |
(43.96坪) |
| 合計 |
407.37㎡ |
(123.24坪) |
- 敷地面積
-
245.99㎡ (74.41坪)
- 用途地域
-
第一種住居地域
- 前面道路幅員
-
約7.5m
- 高速乗り口
-
近畿自動車道名古屋・大阪線 東大阪北
- 使用開始時期
-
即日
- 設備等
-
・事務所付き
・高速IC
・駐車スペース有り
- 備考
-
・賃貸保証会社加入要:初回100% 更新年2万
・リフトは使用不明(残置物扱い)
・現状有姿
・火災保険加入要