Updates
Updates
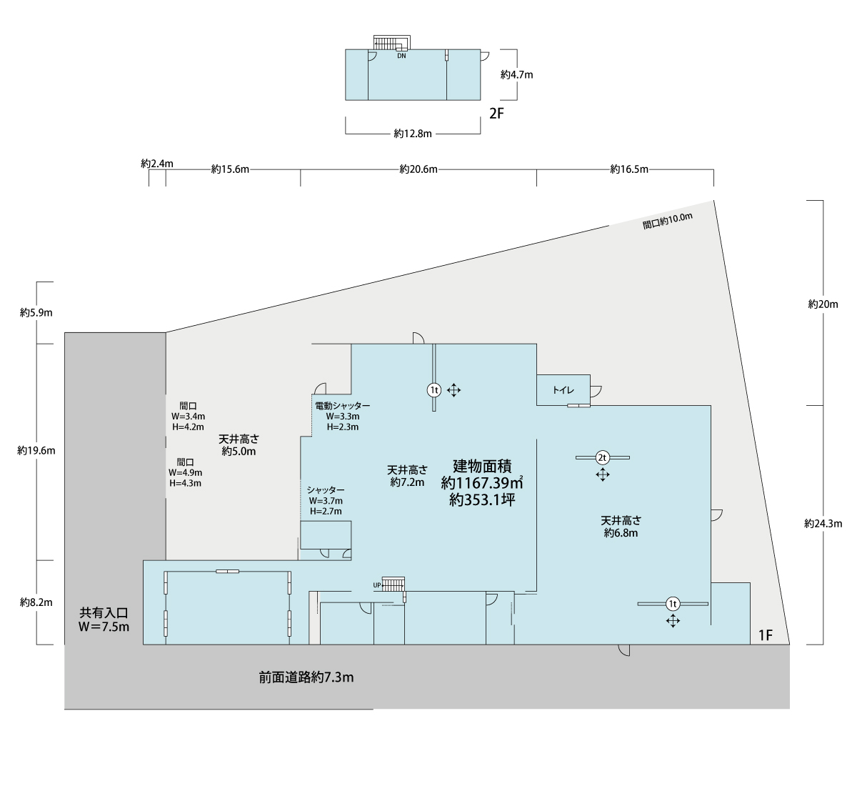
貝塚市東山倉庫
賃貸
- 物件所在地
- 大阪府貝塚市東山2-11-2
- 保証金・解約引
-
5ヵ月
/
2ヵ月
- 敷金・礼金
-
ー
/
ー
- 賃料
-
800,000円 /
坪単価:2,265円
- 建物構造
-
鉄骨造 スレート葺 1階
- 交通・アクセス
-
三ツ松駅(水間鉄道) 徒歩12分
More info
- 建物面積
-
| 1階 |
1167.39㎡ |
(353.14坪) |
| 合計 |
1167.39㎡ |
(353.14坪) |
- 敷地面積
-
1982.30㎡ (599.65坪)
- 用途地域
-
準工業地域
- 前面道路幅員
-
約7.3m
- 高速乗り口
-
阪和自動車道松原那智勝浦線 貝塚
- 使用開始時期
-
相談
- 設備等
-
・事務所付き
・駐車スペース有り
・平屋建て
- 備考
-
・現状有姿
・賃貸保証会社加入要
・借家人賠償付火災保険加入要
・建物面積内の約162㎡は未登記