Updates
Updates
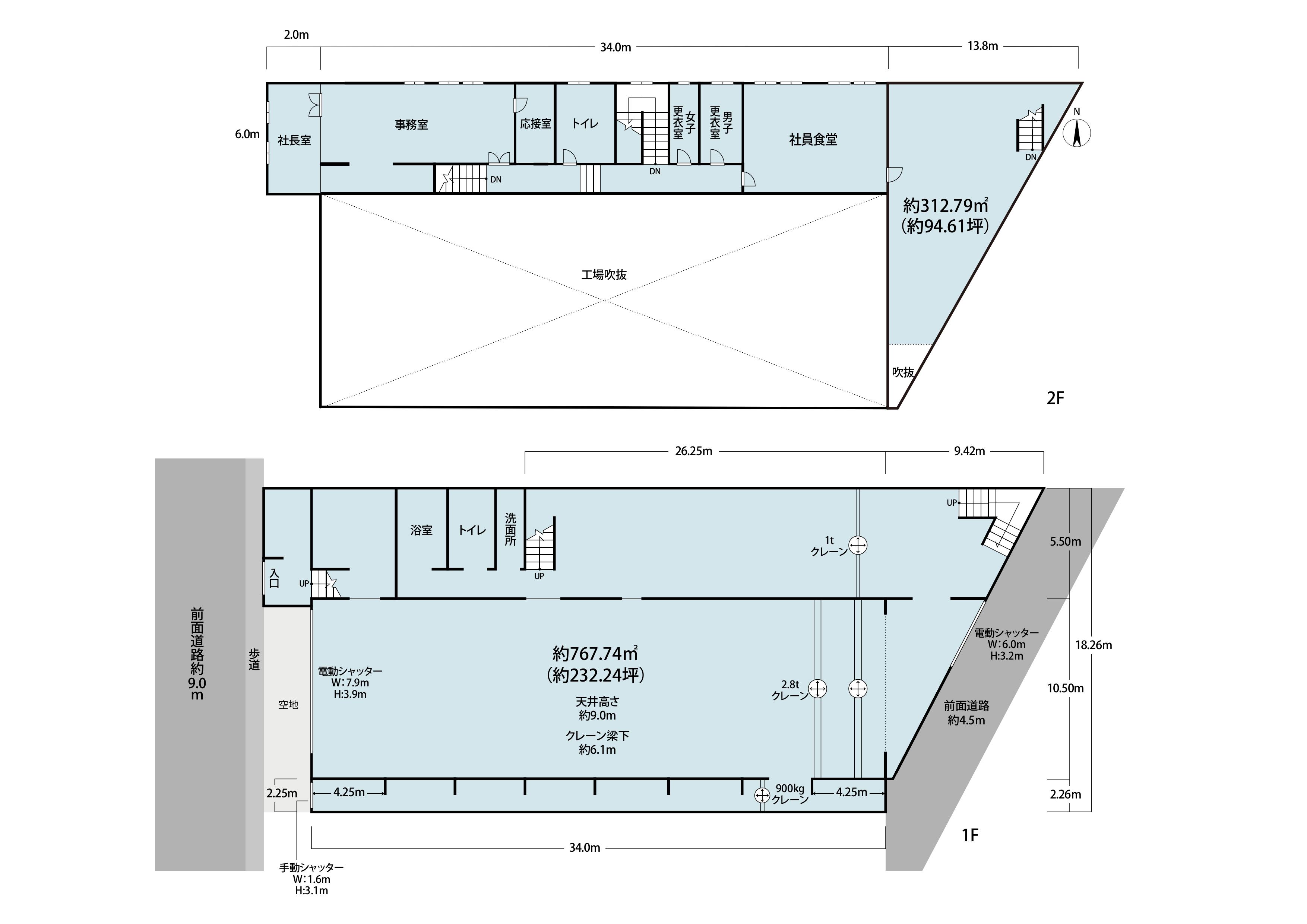
神戸市長田区梅ケ香町クレーン付工場・事務所
賃貸
- 物件所在地
- 兵庫県神戸市長田区梅ケ香町2-2-7
- 保証金・解約引
-
ー
/
ー
- 敷金・礼金
-
3ヵ月
/
2ヵ月
- 賃料
-
1,650,000円 /
坪単価:5,048円
- 建物構造
-
鉄骨造 2階
- 交通・アクセス
-
苅藻駅(神戸市海岸線) 徒歩10分
More info
- 建物面積
-
| 1階 |
767.74㎡ |
(232.24坪) |
| 2階 |
312.79㎡ |
(94.62坪) |
| 合計 |
1080.53㎡ |
(326.86坪) |
- 敷地面積
-
941.70㎡ (284.86坪)
- 用途地域
-
工業地域
- 前面道路幅員
-
約9m
- 高速乗り口
-
阪神高速3号神戸線 柳原
- 使用開始時期
-
即日
- 設備等
-
・事務所付き
・駅チカ
・クレーン
・駐車スペース有り
・大型車両
・40フィートコンテナ
・キュービクル
・天井高5メートル以上
・高速IC
- 備考
-
・現状有姿
・家賃保証会社加入要
・借家人賠償付き火災保険加入要
・クレーン5基付
・即日入居可能
・大型車侵入可能
・検査済証無し